“UOB Live” Conference Hall ที่ครบครัน ตอบโจทย์ทุกความต้องการจัดประชุมของคุณ
กำลังมองหา Conference Hall ใจกลางกรุงเทพฯ ที่พร้อมรองรับทุกรูปแบบการจัดประชุมใช่ไหม? “UOB Live” คือศูนย์จัดประชุมทันสมัยในย่าน EM District ที่ถูกออกแบบมาเพื่อเป็น Conference Hall และ Convention Hall ระดับสากล รองรับทั้งงานสัมมนา เวิร์กช็อป การประชุมองค์กร ไปจนถึงงานแถลงข่าว ด้วยเทคโนโลยีภาพและเสียงสุดล้ำ ทำเลเดินทางสะดวก ติด BTS พร้อมพงษ์และบริการครบวงจร
UOB Live ความยืดหยุ่นที่ไร้ขีดจำกัดสำหรับทุก Event Space
UOB LIVE ขนาด (Dimension) และความจุ (Capacity)
Dimension: 62m x 72m (4,464 m²)
Flat Seating Capacity: 5,468 PAX
Standing Capacity: 6,000 PAX






Banquet Mode
Center Ring Mode
Exhibition Mode
Full Seat Mode
Full Standing Mode
Lyric Mode
Standing & Retractable Mode
Theatre Mode
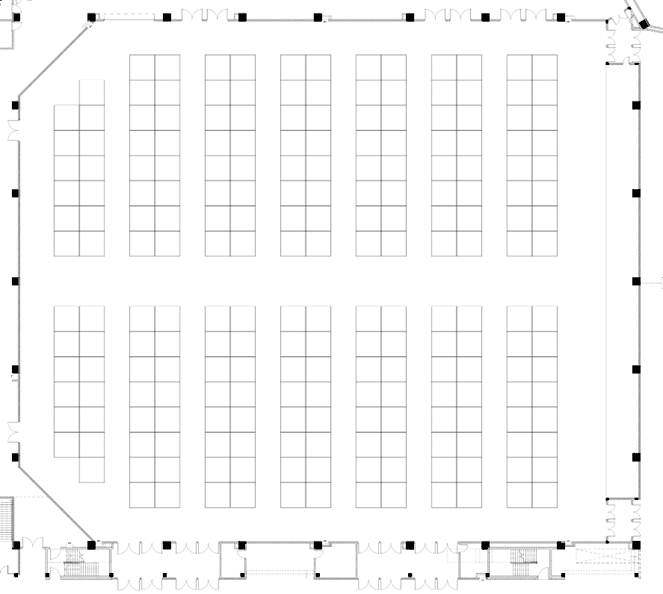
5th Floor Plan
5M th Floor Plan
6th Floor Plan
Our location
รถไฟฟ้า BTS
ลงสถานีพร้อมพงษ์ (ทางออก 6) เตินผ่าน Skywalk เข้า EMSPHERE
รถไฟฟ้าใต้ดิน MRT
ลงสถานีสุขุมวิท เติน 15 นาที หรือ ต่อ BTS สถานีอโศก ลงสถานี พร้อมพงษ์ หรือต่อวินมอเตอร์ไซต์
รถเมล์ (BUS)
สาย 1-39, 1-53, 2, 25, 38, 4-39, 40, 501
รถยนต์ส่วนตัว
จอดรถที่ EMSPHERE, ปั๊มบัตรจอดฟรี ที่ Hall ชั้น 6 (สูงสุด 12 ซม.)
FAQ
UOB Live รองรับการจัดงานประเภทใดบ้าง?
“UOB Live” ไม่ได้เป็นเพียงแค่ Conference Hall เท่านั้น แต่เป็น ฮอล์อเนกประสงค์ที่รองรับการจัดงานได้ครอบคลุมทุกประเภท ไม่ว่าจะเป็นคอนเสิร์ตขนาดใหญ่ งานแสดงสินค้า งานนิทรรศการ (Exhibition), การประชุมระดับนานาชาติ (Convention), งานสัมมนา เวิร์กช็อป งานเปิดตัวสินค้า งานเลี้ยงองค์กร ไปจนถึงงานกาล่าดินเนอร์ เรามีพื้นที่ที่ยืดหยุ่นและปรับแต่งได้ตามความต้องการของงานคุณ
สถานที่ตั้งของ UOB Live อยู่ที่ไหน? เดินทางสะดวกหรือไม่?
UOB Live ตั้งอยู่ในศูนย์การค้า EMSPHERE ย่าน EM District เดินทางง่ายด้วย BTS พร้อมพงษ์ เชื่อม Skywalk สะดวกทั้งผู้จัดและผู้เข้าร่วมงาน
UOB Live รองรับผู้เข้าร่วมงานได้กี่คน?
พื้นที่ภายใน Conference Hall ของ UOB Live รองรับผู้เข้าร่วมได้หลากหลาย ตั้งแต่งานประชุมขนาดเล็กหลักร้อยคน ไปจนถึงงานสัมมนา หรืองานอีเวนต์ขนาดใหญ่ที่สามารถรองรับได้หลายพันคน พร้อมระบบจัดการพื้นที่ที่ยืดหยุ่น รองรับทั้งแบบ Theatre, Classroom หรือ Banquet ตามลักษณะของงาน